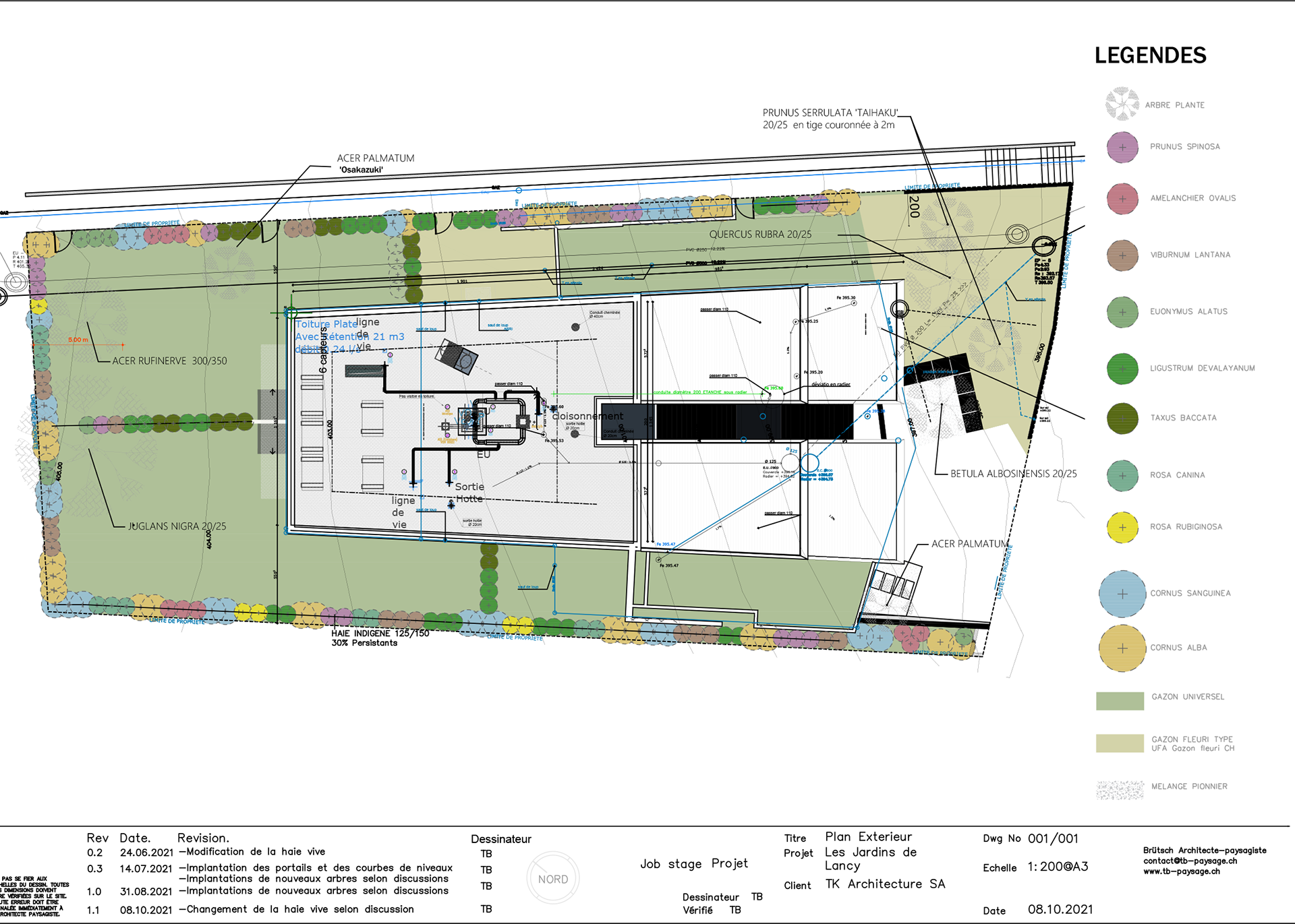
Dans le cadre d'un plan d'aménagement paysager, il a été convenu avec l'architecte de retravailler le front du bâtiment avec des essences ornementales qui participeront à la mise en scène de l'immeuble depuis la route. Les limites ont été matérialisée sous la forme d'une haie vive qui offre refuges et nourritures pour la petite faune environnante toute en créant des tableaux qui évoluent au fil des saisons pour les habitants.
Back to Top